В парке 30-летия ВЛКСМ появятся электрический лабиринт и азбука Морзе

Благоустройство одной из главных зелёных зон Омска предполагает установку научных площадок для детей.
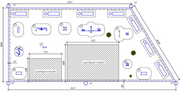
Опубликован проект контракта на обновление парка им. 30-летия ВЛКСМ. Согласно аукционной документации, работы развернутся слева от главной аллеи.

Потенциальному подрядчику предстоит заменить бортовые камни, уложить чёрно-красную бетонную плитку с верхним слоем из гранитной крошки, установить новые скамейки со спинкой, изготовленные из металла и дерева, урны с пепельницей, освещение. В этой части благоустройство схоже с ещё одним общественным пространством в Омске, для которого торги по поиску подрядчика объявили накануне.
Особенностью парка станут детские образовательные модули. Среди них "Азбука Морзе", где можно будет передавать сигналы, "Кинематограф", который наглядно покажет принцип работы первых киноаппаратов на примере бегущей лошади и человека, "Слушай город", где с помощью труб можно будет улавливать звуки.

На площадках "Знаменитые композиторы" и "Музыкальные инструменты" за счёт перемещения ползунков можно будет прослушать определённые мелодии, а "Электрический лабиринт" и "Электрическая цепь" проиллюстрируют, как протекает электрический ток.
Там же должны появиться "Театр теней" и "Береговой маяк". Всё пространство с развивающими конструкциями оградят цветными карандашиками, примерно как в городском саду у ТЮЗа.

Контракт на сумму 11,6 млн рублей разыграют на торгах в начале марта. Победитель должен будет приступить к работам в середине апреля, закончить — до 31 июля этого года.
Парк вошёл в список объектов, которые в этом году благоустроят по программе "Формирование комфортной городской среды". Также в перечне — аллея братьев Сазоновых, Воскресенский и Выставочный скверы, третья очередь горсада. Вскоре откроется голосование за территории, которые обновят в 2025 году. Шорт-лист можно посмотреть здесь.
Фото: архив "Омск Здесь", скриншоты рабочей документации, размещённой на zakupki.gov.ru

Комментарии закрыты.